PREDANÉ METROPOLITAN │EXKLUZÍVNE Luxusný renovovaný byt s TERASOU

  • 570,000€
Fialkové údolie, Bratislava - Staré Mesto
PREDANÉ METROPOLITAN │EXKLUZÍVNE Luxusný renovovaný byt s TERASOU
Fialkové údolie, Bratislava - Staré Mesto
  • 570,000€

Popis / Description

METROPOLITAN │EXKLUZÍVNE Luxusný 3 izbový byt s obrovskou terasou s jedinečným výhľadom

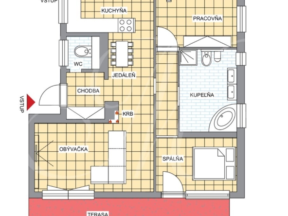
Byt s rozlohou 118,11 m2, ktorý sa nachádza na 5. poschodí zo 7 , prešiel kompletnou rekonštrukciou. Dispozícia bytu pozostáva zo vstupnej haly, luxusnej obývacej miestnosti s biokrbom zariadenej architektom, kuchyne so spotrebičmi najvyššej kvality, manželskej spálne a hosťovskej/ pracovnej/ detskej izby so vstavanou skriňou. Zvyšná časť bytu je tvorená priestrannom kúpeľňou s vaňou, bidetom, sprchovým kútom, vaňou, toaletou, komorou spojenou s práčovňou, oddelené WC.

Najväčším plusom tohto jedinečného bytu je obrovská terasa (57,4m2) s jedinečným, ničím nerušeným fantastickým výhľadom ( 180 stupňov ). Obrovskou výhodou je, že výhľadu nebude nikdy brániť žiadna novostavba. Západy slnka na terase sú spektakulárne a dodávajú tomuto bytu jedinečné čaro. Je možné dobudovať zimnú záhradu a vytvoriť tak ďalšiu obývateľnú miestnosť. Byt je postavený tak, že priamo nad sebou, pod sebou ani po stranách nezdieľate steny bytu so susedmi, čo zaručuje absolútne ticho a súkromie.

Byt prešiel nákladnou rekonštrukciou a vznikol z pôvodne 4-izbového bytu. Jednoduchou rekonštrukciou je možné opätovne vytvoriť v byte štvrtú miestnosť.
K bytu prislúcha aj parkovacie státie v samostatnej garáži za 50 000€ a pivničná kobka (2,47m2).

VYBAVENIE:
Najnovšie kuchynské spotrebiče (umývačka riadu, sporák, el. rúra, mikrovlnná rúra, ohrievač jedla, chladnička, mraznička)
Práčka, sušička, veľká mraznička
LED osvetlenie v celom byte
Vonkajšie osvetlenie terasy
Alarm
2x televízia
Vstavané skrine a nábytok
2x toaleta
bidet
sprchový kút
vaňa
Klimatizácia
Podlahové kúrenie
Vonkajšie žalúzie
Vlastná garáž
Pivničná kobka

BEZ VÝŤAHU.

LOKALITA:

Byt sa nachádza v súkromnom rezidenčnom komplexe v lukratívnej lokalite na Hradnom vrchu. Táto pokojná tichá rodinná lokalita sa vyznačuje množstvom zelene (lesopark Horský park), občianskou vybavenosťou, blízkosťou potravín, obchodov, škôlky a školy, reštaurácií a supermarketov. Dostupnosť priamo do centra je možná ako autom, tak aj MHD alebo električkami. Parkovať je možné bezproblémovo v garáži za 50 000€ , ktorá k bytu prislúcha.

Mesačné poplatky za energie : elektrina 80 EUR, plyn 60 EUR, voda 60 EUR, 40 EUR poplatky za spoločné priestory, fond opráv.
Byt je možné pomocou nenáročnej rekonštrukcie prerobiť na 4 izbový.

Cena za nehnuteľnosť je vrátane provízie, právneho servisu zabezpečeného advokátom, poradenstva, základného správneho poplatku na katastri.

Nehnuteľnosť bola dôkladne pripravená na predaj na mieru našim Homestaging a Concierge oddelením spoločnosti METROPOLITAN real estate group, aj Vaša nehnuteľnosť si zaslúži prezentáciu a predaj na úrovni. Kontaktujte nás pre bezplatnú konzultáciu.

Detaily

ID nehnuteľnosti
847981
Miestnosti
3
Kúpeľňa
1
Úžitková Plocha
121 m2
Rok výstavby
2010

Floor Plans

Momentálny stav

Description:

Pôvodný stav

Description:

Návrh pôdorysu po rekonštrukcii

Description:

Mám záujem / I am interested

MetropolitanEstates
  • MetropolitanEstates
  • + 421 948 277 928
View Listings

Pre viac informácií vyplňte formulár nižšie

    Meno / Name

    Priezvisko / Surname

    Telefón / Phone

    Email

    Správa / Message

    Odoslaním formuláru súhlasíte so spracovaním osobných údajov. Metropolitan Estates s.r.o spracováva vaše osobné údaje iba za účelom vášho kontaktovania. Viac informácií.

    Compare listings

    Compare
    MetropolitanEstates
    • MetropolitanEstates